| LET OP! Hier volgt een voorbeeld, hier kunnen geen rechten aan worden ontleend. Indien u de echte kosten van dit huis zou willen weten gelieve het formulier boven te gebruiken. | |
| Notariskosten en overdrachtsbelasting bij huidige verkoopprijs/ eenmalig |
€ 9.474 |
| Onroerend goed belasting geschat |
tussen € 232 en € 812 |
| Gebruikersbelasting geschat |
tussen € 232 en € 580 |
| Verzekering | vanaf ongeveer 165 euro per jaar. |
| Elektriciteit, hangt af van uw verbruik. Een abonnement voor 3KW kan bij de EDF al vanaf ongeveer 70 € per jaar, daarnaast betaalt u nog de kosten van het gebruik. |
|
| Water, hangt af van uw verbruik en kan per gemeente verschillen (informeer bij de gemeente). | |
| Riolering, hangt af van uw waterverbruik en kan per gemeente verschillen (informeer bij de gemeente). Indien er geen riolering aanwezig is, check of de huidige septic tank op norm is. Zo niet dan zal deze moeten worden vervangen. Reken voor het plaatsen van een nieuwe septic tank zo rond de 7000 en 11.000 euro. Meer informatie over de septic tank vindt u hier (in het Frans). |
|
| Verwarming, hangt af van uw verbruik en vorm van verwarming (hout, olie, elektrisch, etc.). | |
Ik wil graag meer informatie over dit object
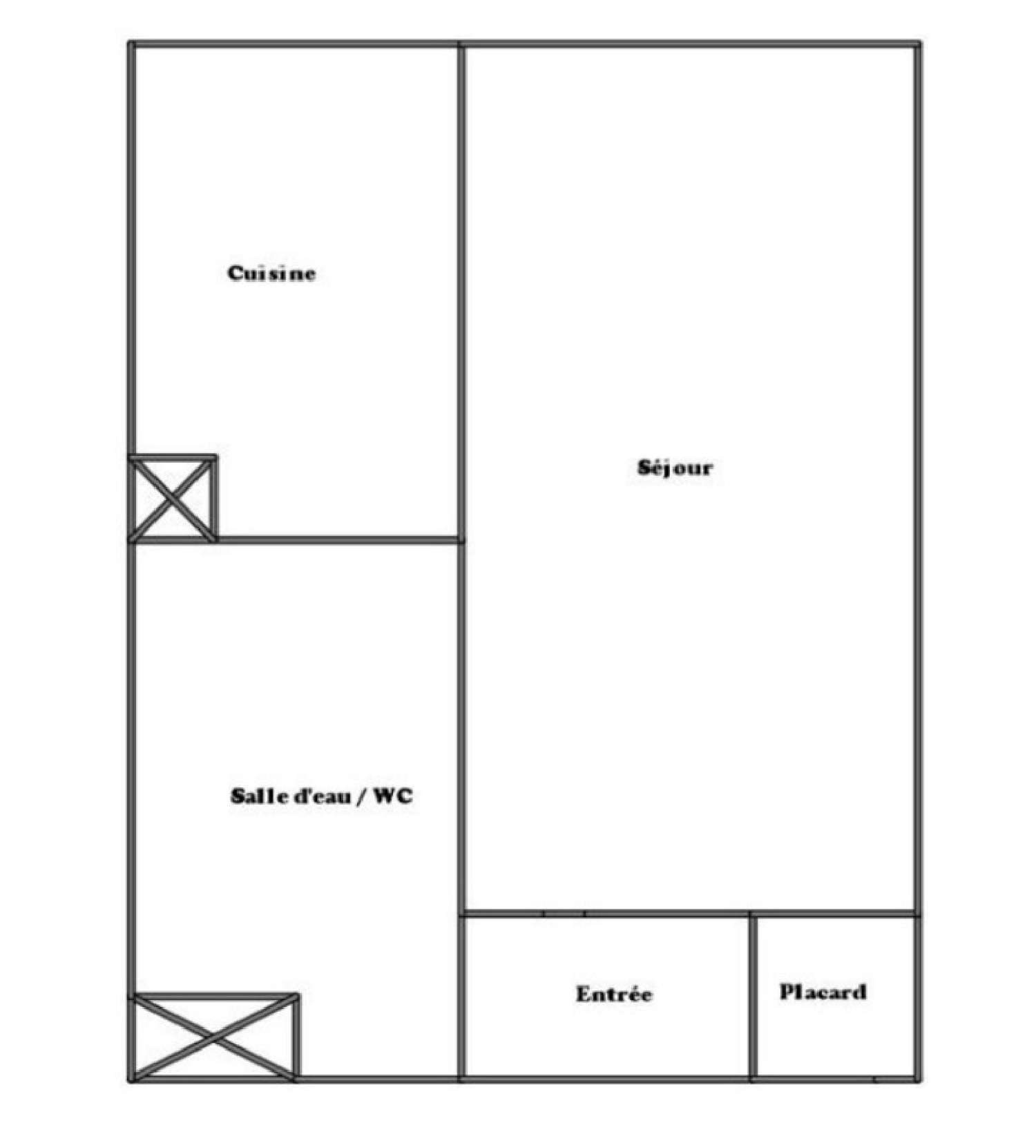
appartement Rennes 35700, Ille-et-Vilaine referentie: 340930633461
Taxatie of bouwkundig onderzoek nodig?
Inter-France verzorgt in geheel Frankrijk de taxatie van onroerend goed overeenkomstige de Europese regelgeving. Deze conformiteit aan Europese richtlijnen is van belang indien uw taxatie wordt verzorgd op verzoek van een bank of financiële instelling of in het kader van een schenking, erfkwestie, eigendomsverdeling of juridische procedure. In dergelijke situaties is een taxatierapport vereist dat is opgesteld door een deskundige Expert Immobilier.
werken in Frankrijk
Het makelaarskantoor van Inter-France in Frankrijk staat bekend onder de naam Sympa-Immobilier en is een grote bekende speler op de Franse huizenmarkt. Het bedrijf heeft een groot internationaal bereik en groei ambities. Voor verschillende regio’s in Frankrijk zijn ze op zoek naar ondernemende mensen die interesse hebben in een makelaarsagentschap. Je werkt als zelfstandige in je eigen tijd en regio en je zult in het Nederlands worden begleid in het makelaarsvak.



