| LET OP! Hier volgt een voorbeeld, hier kunnen geen rechten aan worden ontleend. Indien u de echte kosten van dit huis zou willen weten gelieve het formulier boven te gebruiken. | |
| Notariskosten en overdrachtsbelasting bij huidige verkoopprijs/ eenmalig |
€ 7.342 |
| Onroerend goed belasting geschat |
tussen € 170 en € 595 |
Ik wil graag meer informatie over dit object
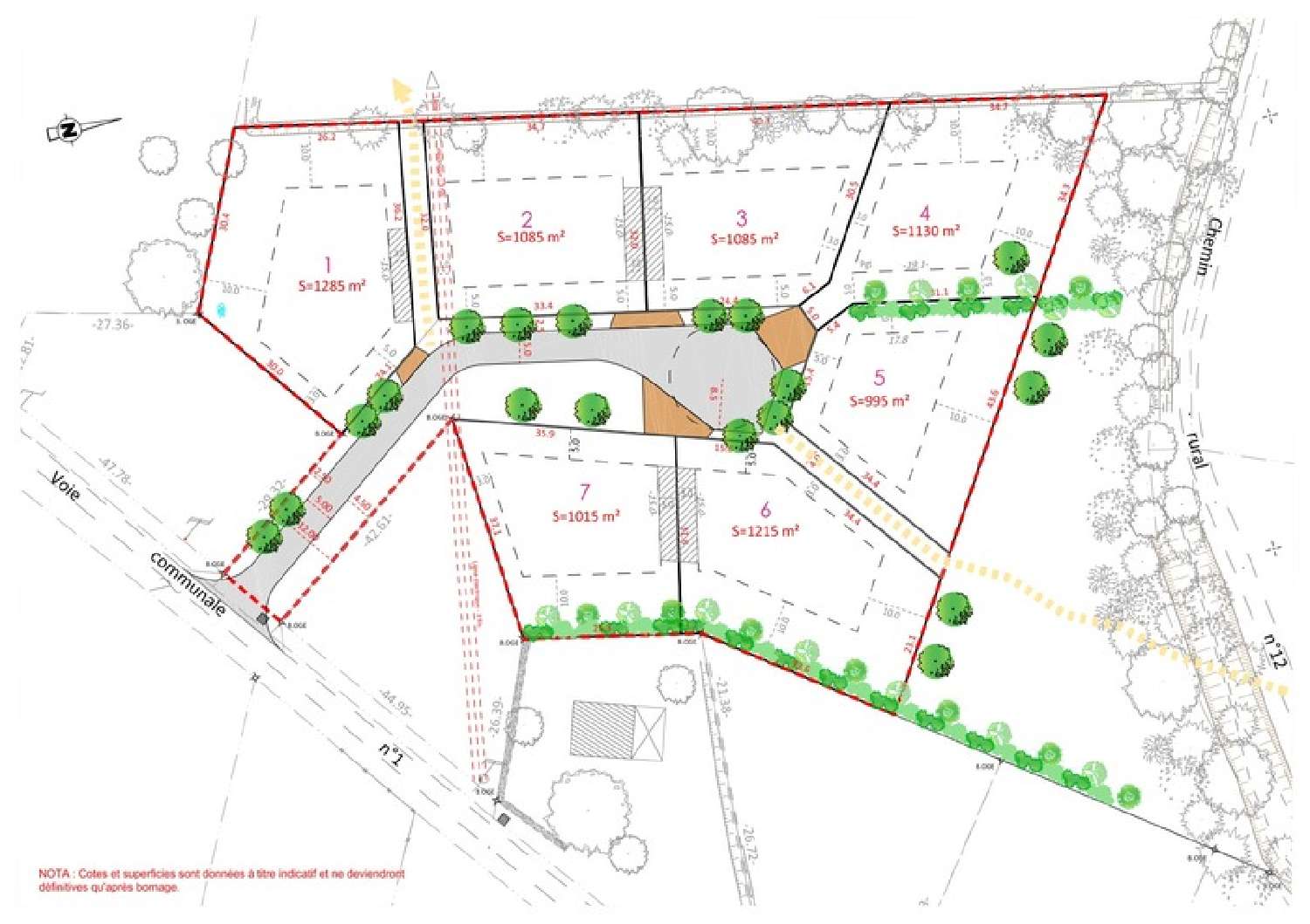
terrein Brouqueyran, Gironde referentie: 830032966385
andere huizen in de buurt
Taxatie of bouwkundig onderzoek nodig?
Inter-France verzorgt in geheel Frankrijk de taxatie van onroerend goed overeenkomstige de Europese regelgeving. Deze conformiteit aan Europese richtlijnen is van belang indien uw taxatie wordt verzorgd op verzoek van een bank of financiële instelling of in het kader van een schenking, erfkwestie, eigendomsverdeling of juridische procedure. In dergelijke situaties is een taxatierapport vereist dat is opgesteld door een deskundige Expert Immobilier.
werken in Frankrijk
Het makelaarskantoor van Inter-France in Frankrijk staat bekend onder de naam Sympa-Immobilier en is een grote bekende speler op de Franse huizenmarkt. Het bedrijf heeft een groot internationaal bereik en groei ambities. Voor verschillende regio’s in Frankrijk zijn ze op zoek naar ondernemende mensen die interesse hebben in een makelaarsagentschap. Je werkt als zelfstandige in je eigen tijd en regio en je zult in het Nederlands worden begleid in het makelaarsvak.

